※土地の大きさ 間口12M 奥行き33M
※接道 東道路
※用途地域 線引前宅地
壁面後退 –
※階数 2階建て
※建物の規模 40坪(ビルトインガレージ除く)
要望は40坪程度
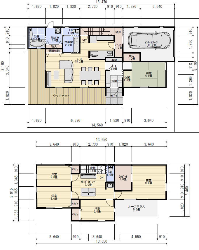
※必要な部屋
建物は2階建て
1階にLDK18畳位
6畳の和室が一室欲しいです。
二階には子供部屋6畳が3室と
夫婦の寝室が1室8畳。
それに階段から上がってきた所に6畳程度の共有スペースが欲しいです。
間取の要望
南玄関でお願いします。
キッチンは対面式。
風呂場は1.25坪で、
1階トイレは将来的に親が車イスとかになってもいいように
横から入るタイプでお願いします。
1台分のインナーガレージとそれに続くパントリーが欲しいです。
インナーガレージは下屋でも建物一体でも構いません。
出来れば幅は1.75間位(3m以上)欲しいです。
階段はリビング階段もしくはリビングを通らないといけない間取り。
和室には仏壇置きたいです。
2階にもトイレ、洗面が欲しいです。
子供部屋2つは1つに繋げといて将来的に2つに仕切りたいです。
主寝室は南か東側で、バルコニーは主寝室からしか出入出来ない形でお願いします。
バルコニーは少し広めで0.75~1間奥行き欲しいです。
LDKから続くウッドデッキを設置する予定です。
将来的に間口12m×奥行き9m×高さ4.5mの車整備のガレージに
間口12mの面に3m位コンクリ敷いて12m×12m位の敷地を使用予定なので、
それも考慮に入れた間取りでお願いします。
※家族構成
家族は夫婦2人と子供3人の予定です。
将来的に親が増えるような形になると思います
