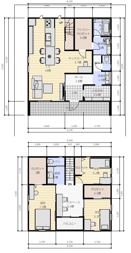
土地:
南西向き間口11m奥行き24mです。
一種低層住宅地域です。
2階建て37坪くらいでお願いします。
必要な部屋
1階
LDK18~20帖
リビングに面したキッズスペース兼客間3~4
SIC2
脱衣洗面別で脱衣室に普段着が置ける収納3帖
2階
寝室6~7
子ども部屋収納込みで5帖を2部屋
南西側に公園を眺めるスペース正方形で2帖
(ワークスペース兼でも可)
ワークスペース3帖
(250cmくらいのカウンターテーブル
奥行き90cmと壁面に本棚つけたい)
トイレ洗面を1.2階両方に
間取りの要望
対面キッチンで横並びにダイニングがほしい
キッチンからリビングが見たい
リビングとキッズスペースは
後々開放できるよう扉や柱少なくしたい
脱衣室通らずに手を洗えるといい
子どもの机は部屋に置かないので狭くていい
どこかに布団やおひなさまなど
大きなものをしまえる収納がほしい
家事動線に沿った収納もほしい
トイレの近くに洗面所を設けて
トイレに手洗いは設置しない
階段位置にこだわりはなし
床暖房、乾太くん設置予定
家族構成
夫婦。夏に男児出産予定。
子供は全部で2~3人予定
