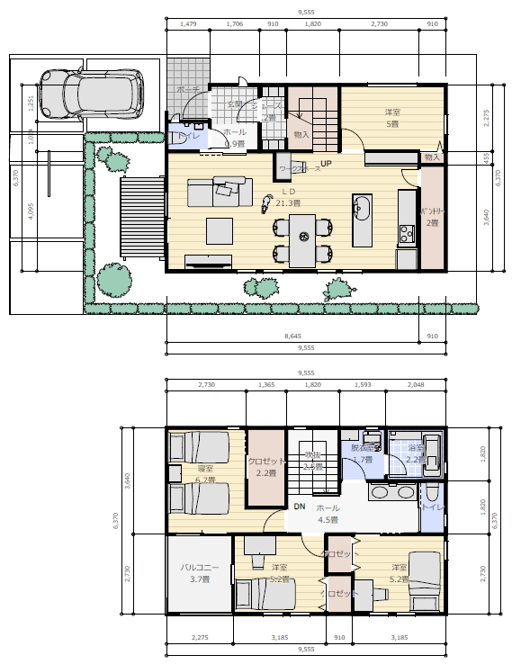
土地の大きさ:間口16M, 奥行き8.9M
接道:南西角地、南西4M、北西6M、
周辺状況:
用途地域:一種低層住居地域
壁面後退:隣地境界から1M
階数:2階建て
建物規模: 34坪(要望は35坪程度)
可能な容積率は敷地面積の80パーセント34.46坪まで
必要な部屋:
1階にLDK、4.5畳以上の洋室、
ワークスペース、2階に主寝室6畳、
子供部屋4.5畳以上2室。2階お風呂。
間取りの要望:
1階:
1.
玄関:大人3人が同時に靴の脱ぎ履きができる広さがほしい。
シューズクローク、土間収納がほしい。
土間収納はウォークスルーではなく、
ウォークインタイプでよい。
靴、スケボー、スノーボード、スーツケース、
アウトドア用品を収納予定。
2.洗面トイレ:洗面とトイレが隣接
3.部屋:LDKと隣接の洋室(4.5畳以上)がほしい、
当分はこどもの遊ぶスペース、勉強部屋にしたい。
将来寝室として使える可能性あり。クローゼットほしい
4.収納:掃除用品を収納できるスペースがほしい
5.キッチン:
1)セパレートがよいが
、難しいなら普通のアイランド型でもよい。
LDの広さを優先。
2)回遊同線にしたい、
難しいなら家事動線をよくしたい。
3)狭くてもよいが、パントリーがほしい
4)キッチン隣接の勝手口がほしい。
雨の日も濡れなくてもゴミを出せるようにしたい。
6.LD:
1)リビングはTVからソファの背面までまで4メートルがほしい、
横幅が3メートル以上
2)ダイニングは1.5×0.85の食卓で大人6人が座れる広さにしたい。
3)LD一体型(L字ではない)
7.その他スペース
1)ワークスペース、
LDKからみえないかみえにくいところにあってほしい。
デスクトップが置ける広さ、収納つき。
2)屋外にテラスかウッドデッキがほしい
8.その他:
1)プライバシーを確保しつつ、
ひあたりを確保してほしい。
土地高低差が若干あり、南側が高い。
2)吹き抜けにこだわりはないが、ひあたりの広さのためならあってもよい。
3)建ぺい率50%、容積率80%のため、総2階ではなくてもよい
2階:
1.部屋:部屋が3つほしい。主寝室6畳、子供部屋一つ4.5畳以上ほしい。
3つ目の部屋も4.5畳以上ほしい、当分書斎代わりに使う予定。
2.洗濯まわり:
1)バルコニー干しのため、室内干しスペースが不要。
2)バルコニー奥行き1.5メートルほしい。雨の日も濡れにくいようにしたい。
3)洗濯・干す動線を楽にしたい。洗濯機の近くに収納がほしい。アイロン台もおけるとよい。
3.洗面:脱衣所と洗面を別々にしたい。洗面ツーボール
4.トイレが一つ。洗面所と近いところにあってほしい。
5.お風呂:1618サイズ、窓がほしい
6.収納:ファミリークローゼットがほしい。
難しいならそれぞれの部屋にクローゼットがほしい。
ウォークインじゃなくてもよい。収納力を重視。
外構:
駐車場2台
家族構成:夫婦と子供1人です。
